Mobile Home Clearance Models
On a budget but need a new home? Choosing a mobile manufactured home is safe and affordable. Our Clearance Model Manufactured mobile homes are sturdy, stylish, and readily available for immediate occupancy Texas wide.
15088 American Dream Curtailment 16X76
Jessup Macarthur
Ozark in Curtailment
Cowboy Clearance Home
3/2 100% Tape and Texture DoubleWide-
WAS $169,000
NOW $145,000
Includes Delivery, Set-up, & A/C*
Real Granite Island, Ready for Immediate Delivery!
Clearance Home Mini Berkshire
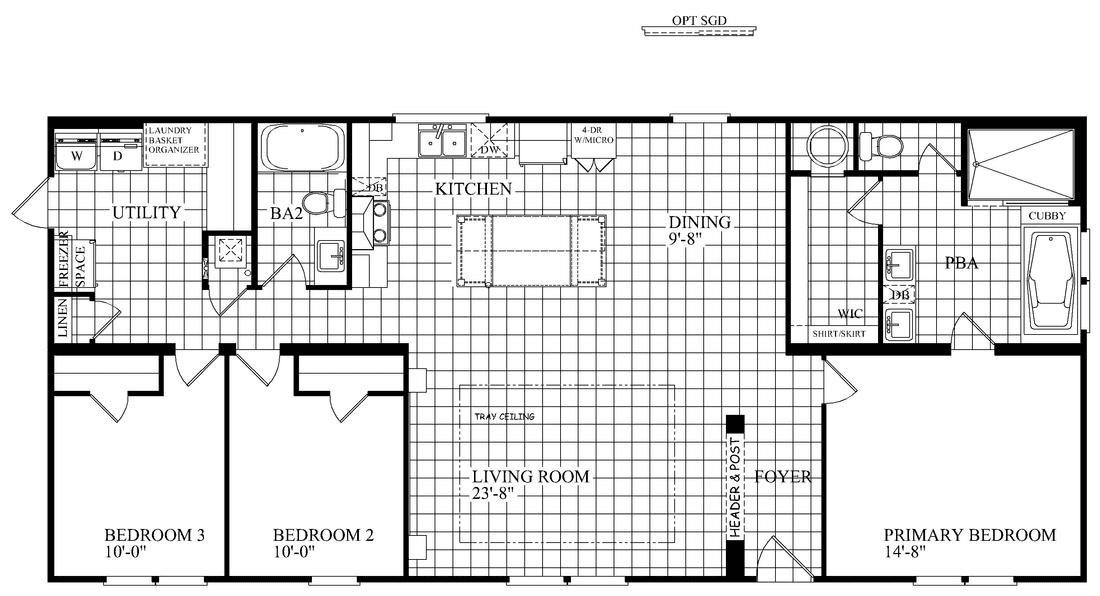
3 Bedroom 2 Bath
32×48 1,536 SQFT
WAS $145,000
NOW $125,900
Includes Delivery, Set-up, & A/C*
Berkshire XL Clearance Homes
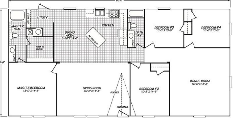
4 Bedroom 2 Bath, With Two living Areas Double wide 32×68 2,176Sqft,
Ready For Immediate Delivery!
Was $175,000
NOW $159,900
Includes Delivery, Set-up, & A/C*
Testimonial from Clients who bought with Mobile Homes Deals
Enjoy significant savings on these newly reduced clearance model mobile homes! Below You can find your perfect home from our inventory of clearance models and save big! Our mobile homes clearance models include overstocked units, closeouts, and factory canceled models. All clearance models are upgraded, quality-checked, and move in ready. Home Clearance Models have multiple floor plan choices with furniture-friendly layouts. We have a designer on staff that can help you choose the best manufactured home options.
At Manufactured Housing Consultants, our clearance models are ready to be shipped at significantly discounted prices. Every home we offer is premium built, durable and passed our inspection systems. We help get you financed with financial assistance programs for low-income and individuals with compromised credit history. Get details about our mobile homes clearance models, by clicking on any product model image below, and shoot us a text here.

































































































